アクロス箱崎駅前クレステイア 1001
| 賃料 | 14.2 万円 | 管理費 | なし |
|---|---|---|---|
| 敷金 | 14.2万円 | 礼金 | 29.8万円 |
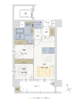
| 間取り | 2LDK | 面積 | 50.66 ㎡ |
| 住所 | 福岡市東区箱崎一丁目7-32 | ||
| 交通 |
JR鹿児島本線 箱崎駅 徒歩3分 福岡市営地下鉄箱崎線 箱崎九大前駅 徒歩9分 福岡市営地下鉄箱崎線 箱崎宮前駅 徒歩11分 |
||
| 種別 | マンション | 駐車場 | 空無 |
| 物件 構造 |
RC造 | 所在階 /階数 |
地上10階建 10階部分 |
| 間取り 内訳 |
築年数 | 2025年10月 | |
| 主要 採光面 |
南 | 引渡し | |
| 設備 | 角部屋最上階日当り良好眺望良好システムキッチン食器洗浄乾燥機3口コンロ以上ガスフローリング人感照明センサーオートライト室内物干機収納スペース全居室収納玄関収納シューズボックス二人入居可 可未入居保証人不要ディンプルキーTVモニタ付きインターホン防犯カメラインターホン都市ガス給湯エレベータ宅配ボックス駐輪場24時間換気システム敷地内ゴミ置き場ゴミ置き場バイク置場(屋外)BS端子インターネット使い放題追焚機能トイレバス・トイレ 別室シャワー温水洗浄便座洗面所洗面台シャンプードレッサー洗濯機置場室内洗濯機置場浴室乾燥機独立洗面脱衣所脱衣所バス ありバルコニーペット相談小型犬相談全居室フローリング床暖房 | ||
| 備考 | |||
| 小学 校区 |
中学 校区 |
||
| 現況 | 空家 | 取引 態様 |
仲介 |
| 物件 番号 |
b2249044 | 有効 期限 |
2025年12月23日 |