福岡の賃貸物件は住まいのサポーター アルコにおまかせ
お部屋を探す
エリアで探す
沿線で探す
地図で探す
学校で探す
条件で探す
AIチャット
こだわり条件
新築物件
ペット可物件
敷金礼金0円物件
ネット無料
特選物件
管理物件
便利なテクノロジー
AIチャット
住まいんど診断
お客様マイページ
テレモニ
SNS
お部屋探しお役立ち情報
オンライン内覧・重説
カード支払OK
お部屋探しから入居までの流れ
月額費用・初期費用 用語辞典
仲介会社の方
会社概要
プライバシーポリシー
個人情報保護方針
お問い合わせ
店舗情報
博多営業所
福岡東営業所
福岡南営業所
福岡西営業所
藤崎駅前営業所
粕屋営業所
二日市営業所
久留米営業所
アクロスモール春日店
総合ホームページ
売買サイト
テナントサイト
ホーム
エリアから探す
春日市
須玖北三丁目
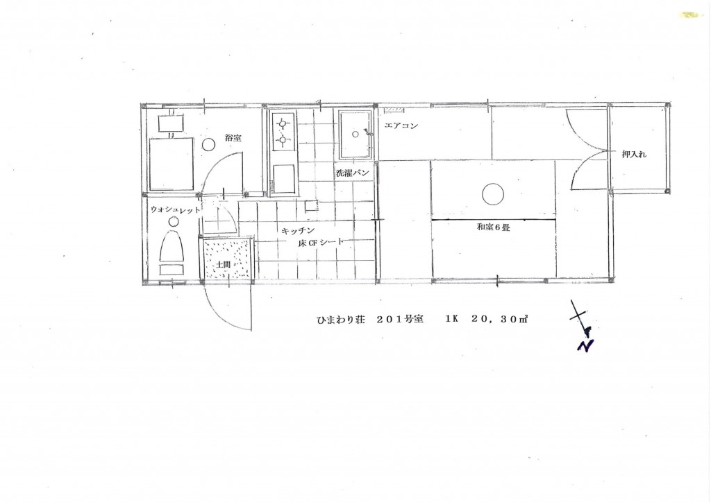
ひまわり荘
ひまわり荘 201号室
賃料
3.2
万円
管理費
なし
敷金
2ヶ月
礼金
なし
間取り
1K
面積
20.3 ㎡
住所
春日市
須玖北三丁目
96
交通
JR鹿児島本線
笹原駅
徒歩19分
JR鹿児島本線
南福岡駅
徒歩23分
種別
アパート
駐車場
空有
物件
構造
所在階
/階数
地上2階建 2階部分
間取り
内訳
築年数
1984年10月
主要
採光面
引渡し
設備
角部屋
日当り良好
閑静住宅街
ガス
照明器具付き
天袋
押入れ
プロパンガス 有
トイレ
バス・トイレ 同室
バス あり
ペット不可
和室有
エアコン
備考
小学
校区
中学
校区
現況
空家
取引
態様
仲介
物件
番号
b2267662
有効
期限
2026年02月11日
コンビニ
スーパー
学校
銀行
郵便局
病院
ひまわり荘 201号室についてのお問い合わせ
福岡市南区向野1-21-6
免許番号:福岡県知事免許
(4)第16246号
店舗情報・アクセス
ひまわり荘 201号室
電話で問い合わせ
メールで問い合わせ
お気に入り登録
ひまわり荘 201号室
電話で問い合わせ
メールで問い合わせ
お気に入り登録